Στεγαστικός συνεταιρισμός Καπναποθήκης

3ο Βραβείο
ΟΜΑΔΑ
Βασιλική Ματσάγκα, Κορνηλία Ξυράφη, Μανουήλ Τζιβανόπουλος, Αναστασία Χατζηχριστοδούλου
ΣΤΟΙΧΕΙΑ ΚΤΙΡΙΟΥ
Β.Όλγας & Φλέμινγκ, Θεσσαλονίκη
Ιδιοκτησία Ανώνυμης Εταιρείας συμφερόντων του Ιταλικού Δημοσίου (πρόσφατα πουλήθηκε στην εταιρεία super market Lidl)
16.500 τμ
Ιστορικό: Κτίριο Καπναποθήκης Ιταλικού Μονοπωλίου Θεσσαλονίκης (1938) και συμπληρωματικό κτίριο διαμερισμάτων (1958), που αποτελούν μέρος του συγκροτήματος του Ιταλικού Ινστιτούτου στη Θεσσαλονίκη και παραμένουν κενά. Η καπναποθήκη λειτούργησε το διάστημα 1962-68 ως έδρα της «Ιταλικής Εταιρίας Καπνών Ανατολής», ενώ στη συνέχεια από το 1970 και έως περίπου το 1982 ενοικιάστηκε στον Εθνικό Οργανισμό Καπνού (ΕΟΚ), ενώ το κτίριο διαμερισμάτων από την κατασκευή του μέχρι και το 2006, φιλοξενώντας αρχικά τους υπαλλήλους της καπναποθήκης και στη συνέχεια τους καθηγητές του ινστιτούτου. Σήμερα όλα τα κτίρια του συγκροτήματος είναι χωρίς χρήση και βρίσκονται στην ιδιοκτησία του Ιταλικού κράτους υπό τη διαχείριση ενός νομικού προσώπου ιδιωτικού δικαίου.
Στον χάρτη “ΔΙΕΚΔΙΚΕΙΤΑΙ”
ΠΡΟΤΑΣΗ
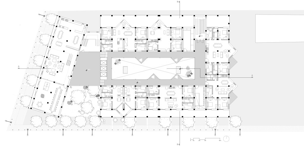
Το κτίριο της Ιταλικής Καπναποθήκης επί των οδών Αλεξάνδρου Φλέμινγκ και Βασιλίσσης Όλγας επαναχρησιμοποιείται προκειμένου να φιλοξενήσει τον συνεταιρισμό “Καπναποθήκη”. Ένας επανασχεδιασμός που ενισχύει την άμεση σύνδεση του συνεταιρισμού με την πόλη με βασικές αρχές την βιωσιμότητα και την συμπεριληπτικότητα. Διατηρώντας το στατικό σύστημα του υφιστάμενου κτιρίου και την οργάνωση που επιβάλλει ο κάνναβος, προκύπτουν διάφοροι τύποι διαμερισμάτων καθώς και κοινόχρηστοι χώροι. Οι τελευταίοι διαβαθμίζονται, ξεκινώντας από τους πιο μεγάλους απευθυνόμενοι σε όλους τους κατοίκους του συνεταιρισμού, όπως καθιστικό,
κουζίνα, πλυσταριό, χώροι εργασίας, και συνεχίζοντας με μικρότερους που τοποθετούνται ανάμεσα από διαμερίσματα και καλύπτουν τις ανάγκες των εκάστοτε κατοίκων. Η διάνοιξη αίθριου και η προσθήκη της πράσινης μεταλλικής κατασκευής έρχονται να αναβαθμίσουν την λειτουργικότητα του κτιρίου, δημιουργώντας διαδρόμους κίνησης, κατακόρυφες κινήσεις,
ενώνοντας τους δύο όγκους και βελτιώνοντας τις βιοκλιματικές συνθήκες. Οι χρήσεις του
ισογείου, όπως το σημείο ανακύκλωσης, τα εργαστήρια, το συνεταιριστικό παντοπωλείο καθώς και η συνεργασία τους σε ένα πλαίσιο κυκλικής οργάνωσης, σκοπεύουν στην διάδοση της ιδέας της συνεταιριστικής κατοικίας στην ελληνική πραγματικότητα.


















