Cooperative Living Efeteio (CO.L.EF.)

1ο Βραβείο
ΟΜΑΔΑ
Γιώργος Αναγνωστόπουλος, Μαριέφη Γκούμα, Αθανάσιος Πετσίνης
ΣΤΟΙΧΕΙΑ ΚΤΙΡΙΟΥ
Σωκράτους 65-67, Αθήνα
Ιδιοκτησία ΕΦΚΑ
10.247 τμ, 7 όροφοι
Ιστορικό: 7όροφο κτίριο ιδιοκτησίας ΕΦΚΑ (πρώην ΕΤΕΑΕΠ) με εμβληματικό χαρακτήρα κατασκευασμένο το 1958 σε σχέδια του αρχιτέκτονα Σπύρου Στάικου. Λειτούργησε το 1961 – 1980 ως ξενοδοχείο «Ambassadeur» και στη συνέχεια , από το έτος 1981 έως το 2000, ως το Εφετείο Αθηνών. Για ένα διάστημα λειτουργούσε ως άτυπη στέγη μεταναστών. Παραμένει αναξιοποίητο επί 20ετία.
Στον χάρτη “ΔΙΕΚΔΙΚΕΙΤΑΙ”
ΠΡΟΤΑΣΗ
Το «Cooperative Living Efeteio (CO.L.EF.)» αποτελεί μία οικο-κοινωνική παρέμβαση στο
κτήριο του παλαιού Εφετείου Αθηνών και προγενέστερα, ξενοδοχείου «Ambassadeurs» με στόχο τη δημιουργία ενός κοινωνικά και περιβαλλοντικά βιώσιμου οικοσυστήματος με άξονες τη στέγαση, την απασχόληση, και την αναβίωση της γειτονιάς.
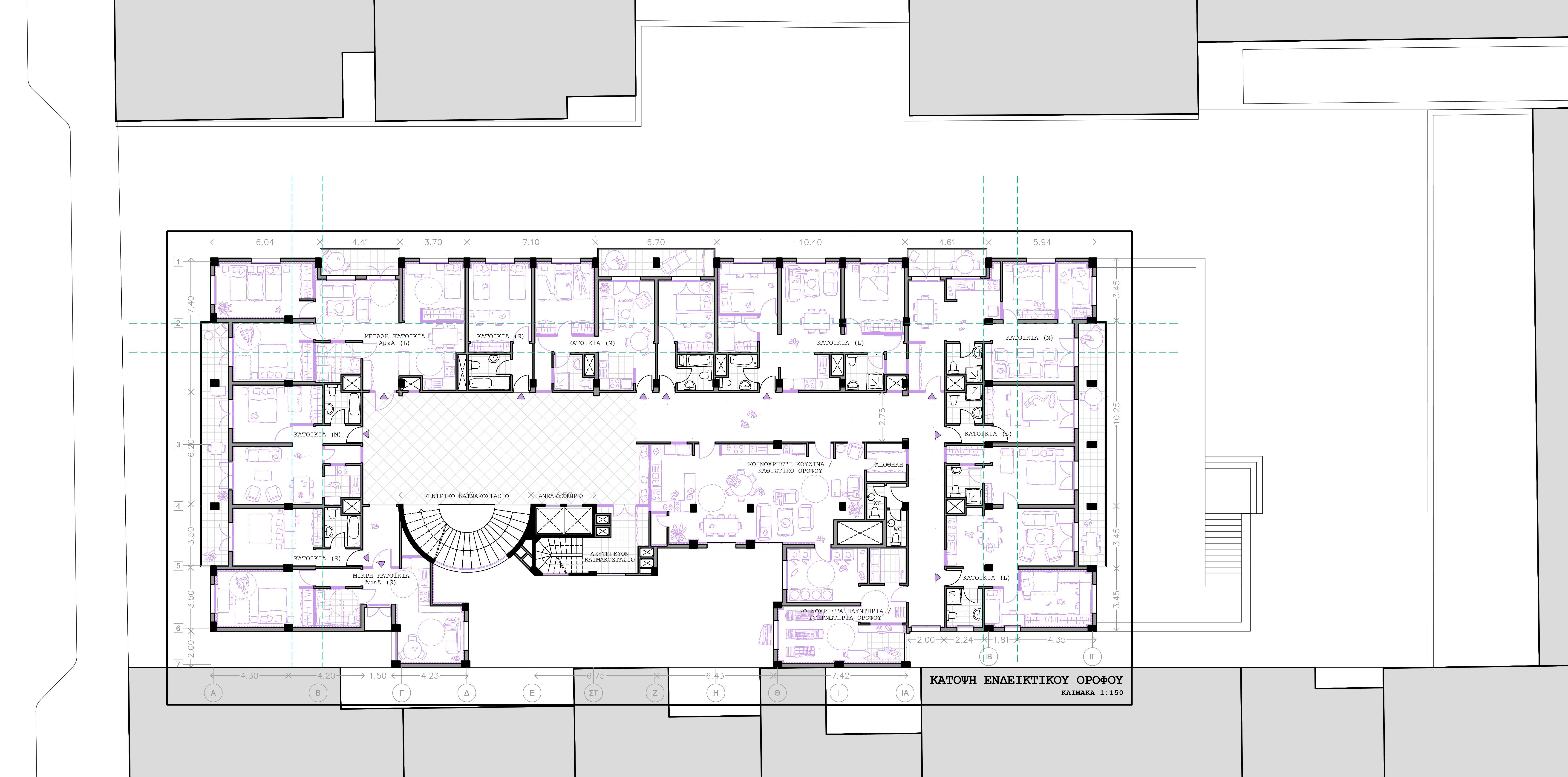
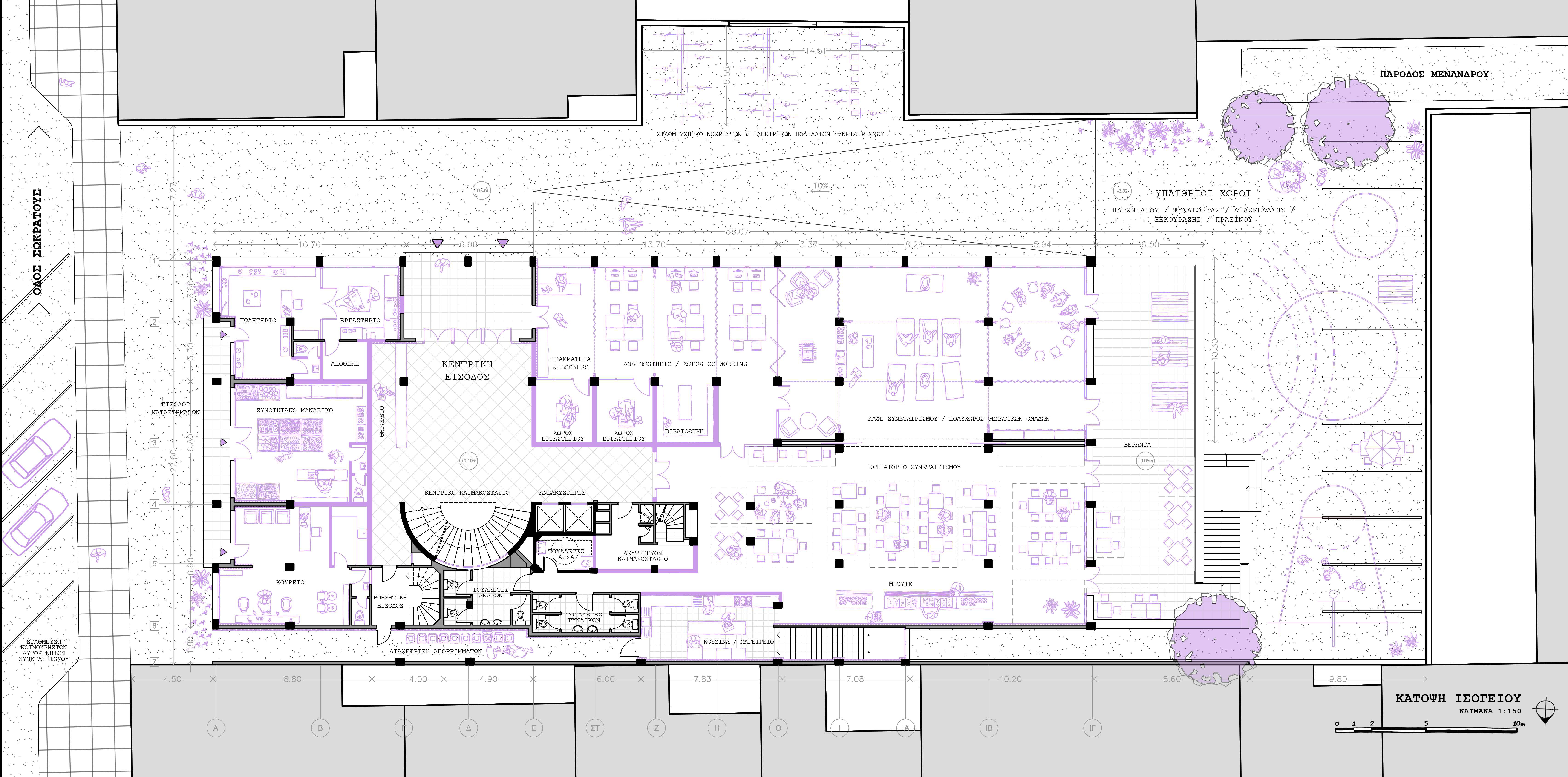
Η προσφορά στέγασης και εργασίας αφορά αφενός σε κοινωνικά ευάλωτες ομάδες, και
αφετέρου στην αναβίωση της περιοχής μέσω πολιτιστικών και περιβαλλοντικών κοινών
(commons) για τη γειτονιά. Μεγάλο μέρος των ευέλικτων μονάδων κατοικίας προσφέρονται
σε χαμηλή τιμή και οι ένοικοι υποστηρίζονται, βάσει κριτηρίων, από αλληλέγγυο συνεταιριστικό ταμείο, στηριζόμενο από συνεταιριστικές επιχειρήσεις, ξενώνα ηθικού
τουρισμού, χορηγίες καθώς και από δράσεις υπερτοπικού ενδιαφέροντος.
Οι αρχιτεκτονικοί χειρισμοί αναδιοργάνωσης του συνόλου αποσκοπούν στην συσχέτιση των δημόσιων, κοινόχρηστων και ιδιωτικών χώρων του κτηρίου με ένα αμεσοδημοκρατικό μοντέλο οργάνωσης βασισμένο στις αρχές της αυτοδιαχείρισης, της κοινωνικής δικαιοσύνης,
της οικολογικής ισορροπίας, της αλληλεγγύης και της πλουραλιστικής συνύπαρξης. Τέλος, η λειτουργία του εγχειρήματος βασίζεται σε κυκλικά συστήματα διαχείρισης της ενέργειας διασφαλίζοντας τη βιωσιμότητα και προσφέροντας ευκαιρίες δημιουργίας προγραμμάτων οικο-κοινωνικής αποκατάστασης και συμμετοχής.






















