Giving and returning

ΟΜΑΔΑ
Κεχαριτωμένη Αργυριάδη, Νίκος Σιδέρης, Εφραίμ Χλιαπάτουδης
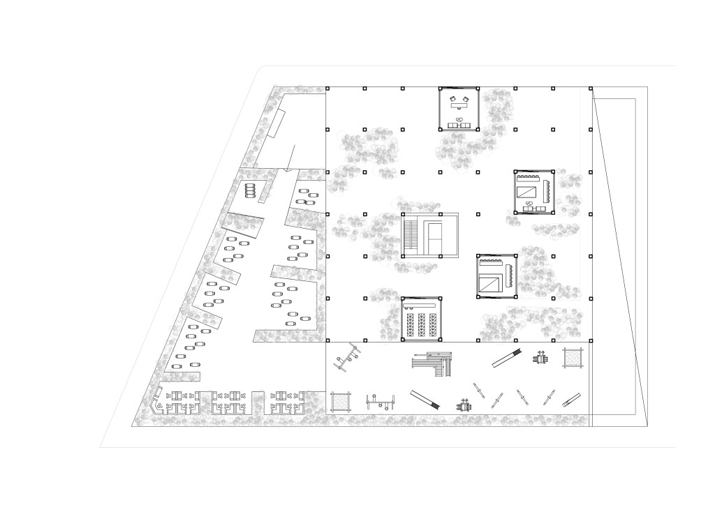
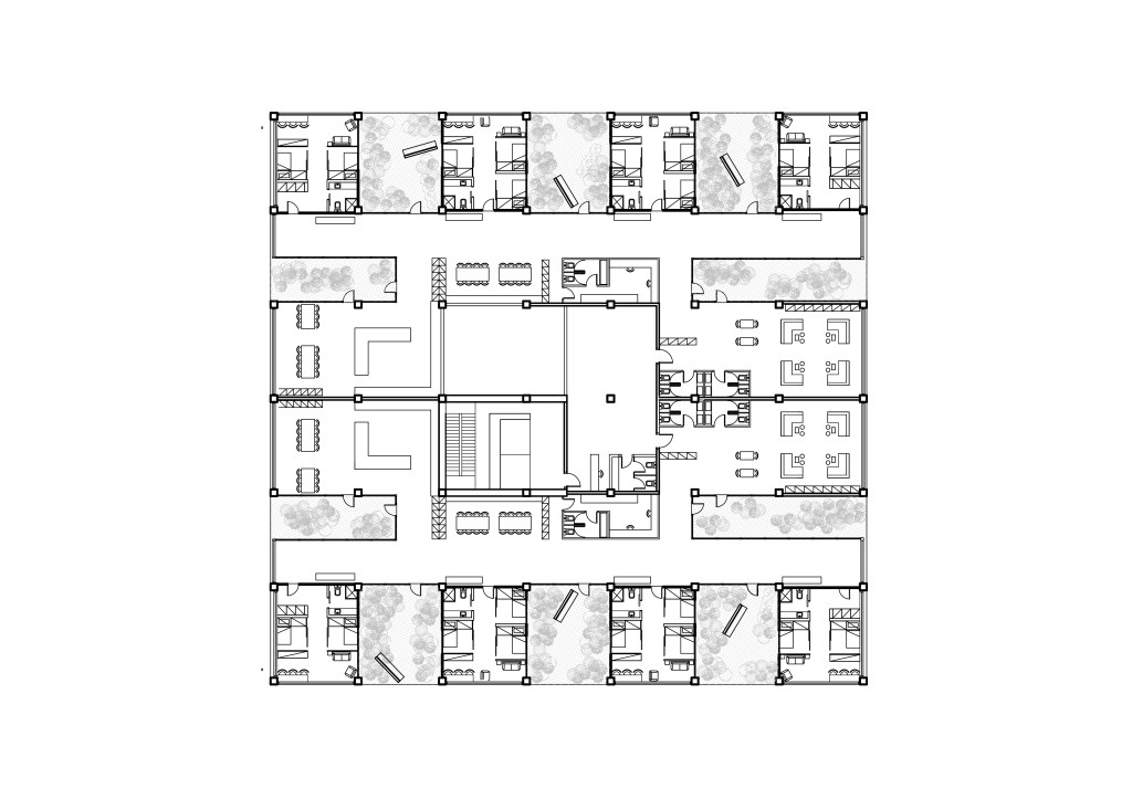
ΣΤΟΙΧΕΙΑ ΚΤΙΡΙΟΥ
Κτίριο Παραπληγικών, Αγ. Δημητρίου & 3ης Σεπτεμβρίου, εντός campus ΑΠΘ, Θεσσαλονίκη
Ιδιοκτησία Αριστοτέλειο Πανεπιστήμιο Θεσσαλονίκης
16.000 τμ, 8 όροφοι
Ιστορικό: Κτίριο 8 ορόφων του 1992 που προορίζονταν για τη δημιουργία «Ερευνητικού Κέντρου Εκπαίδευσης και Αποκατάστασης Παραπληγικών», από το οποίο έχει κατασκευαστεί μόνο ο φέρων οργανισμός.
Στον χάρτη “ΔΙΕΚΔΙΚΕΙΤΑΙ”
ΠΡΟΤΑΣΗ



















