Inside-out Πρότυπη Κοινότητα

‘Επαινος
ΟΜΑΔΑ
Χριστίνα Γκέκα, Χρυσάνθη Ζωή Τσαρτσάλη, Αθανάσιος Γκέκας, Σονια Κατσα, Ειρήνη Μπαρούτι, Μαρίνα Λαϊάκη
ΣΤΟΙΧΕΙΑ ΚΤΙΡΙΟΥ
Βασσάνη & Γαζή, Βόλος
Ιδιοκτησία Πανεπιστήμιο Θεσσαλίας & Δήμος Βόλου
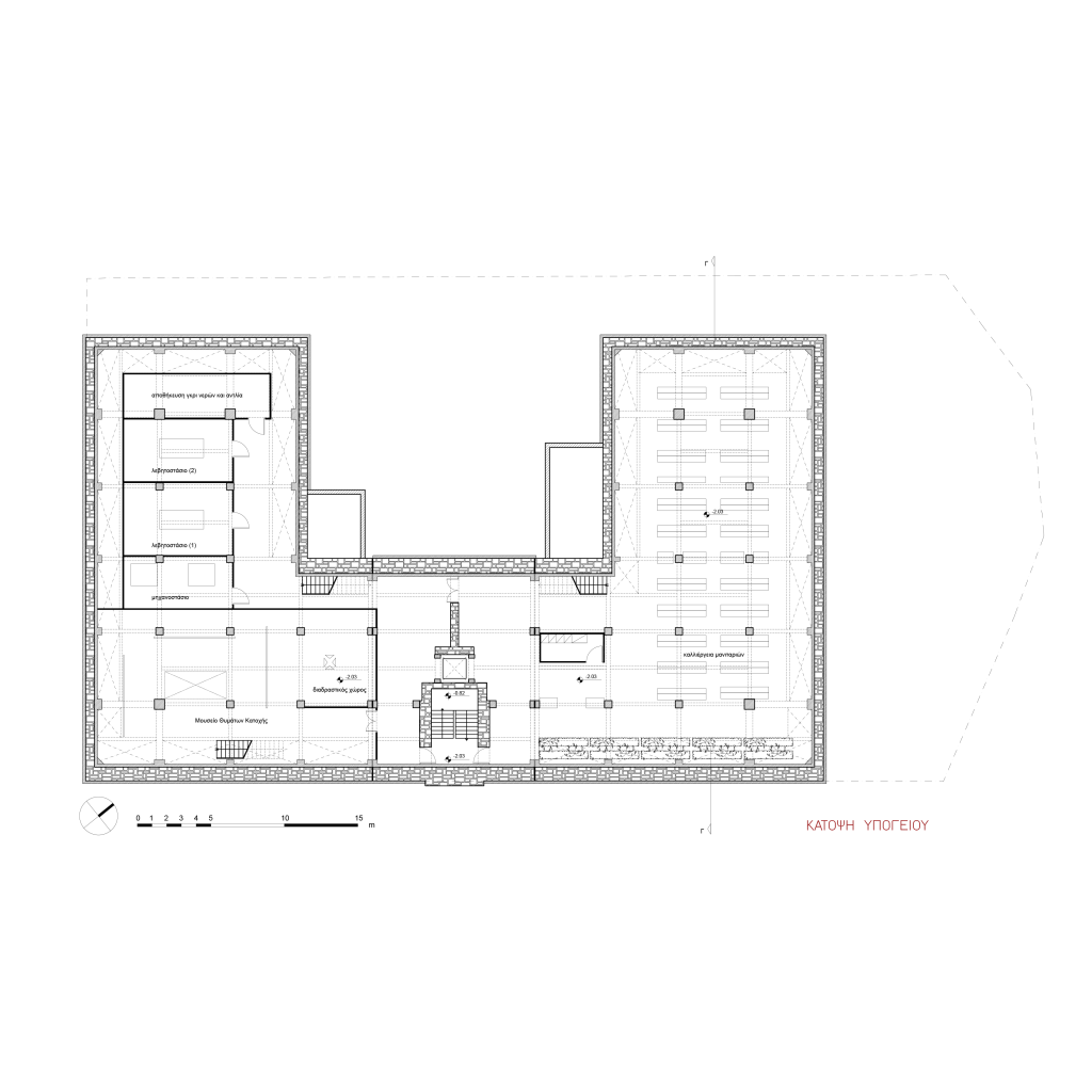
8.290 τμ, 5 όροφοι + υπόγειο
Ιστορικό: Η Κίτρινη Αποθήκη κατασκευάστηκε το 1926 από την American Tobacco. Το κτίριο έχει 5 ορόφους και χαρακτηρίστηκε διατηρητέο το 1993. Κατά την γερμανική κατοχή στο Β’ ΠΠ λειτούργησε ως φυλακή και χώρος βασανιστηρίων.
Στον χάρτη “ΔΙΕΚΔΙΚΕΙΤΑΙ”
ΠΡΟΤΑΣΗ
Η Κίτρινη Καπναποθήκη φιλοδοξούμε να μεταμορφωθεί σε ένα πρότυπο κοινότητας που βασίζεται στις αρχές της βιωσιμότητας, της κοινωνικής συνοχής και της περιβαλλοντικής υπευθυνότητας. Στόχος της πρότασης είναι η δημιουργία μιας «πράσινης αποθήκης» που συνδυάζει σύγχρονες πρακτικές περμακουλτούρας, κυκλικής οικονομίας και κοινωνικής στήριξης ατόμων με οικονομικές δυσκολίες, διατηρώντας ταυτόχρονα το βεβαρυμένο ιστορικό παρελθόν του κτιρίου, μέσω ενός μουσείου θυμάτων κατοχής. Στο πρόγραμμα λειτουργίας του ενσωματώνεται ο εξωτερικός χώρος που είναι λιγοστός σε σχέση με το μέγεθος του κτιρίου και περιλαμβάνει χώρους για παραδοσιακούς τρόπους καλλιέργειας, κυκλικής διαχείρισης νερού-απορριμμάτων και καθιστικά. Η στέγη αποτελεί μέρος της σύνθεσης και του προγράμματος, καθώς η μισή μετατρέπεται σε θερμοκήπιο για να τοποθετηθούν εσωτερικά κατακόρυφες υδροπονικές καλλιέργειες ενώ το νότιο τμήμα της άλλης μισής καλύπτεται με φωτοβολταϊκά για μερική ενεργειακή αυτονομία. Εσωτερικά, τα διαμερίσματα οργανώνονται περιμετρικά του κτιρίου, προκειμένου να αξιοποιηθούν τα υπάρχοντα ανοίγματα για φυσικό αερισμό και φωτισμό ενώ στις πλάκες του κάθε ορόφου δημιουργούνται ανοίγματα, καμινάδες, ένα παθητικό σύστημα που επιτρέπει την κατακόρυφη ανακύκλωση του αέρα μέσα στο κτίριο. Στο κέντρο κάθε ορόφου υπάρχουν κοινόχρηστες λειτουργίες που εξυπηρετούν τους κατοίκους του κτιρίου. Η πρόταση «Inside Out» αποτελεί μια προσέγγιση που ενσωματώνει κοινωνικούς, περιβαλλοντικούς και οικονομικούς στόχους, δημιουργώντας ένα αυτοδύναμο οικοσύστημα, ένα εναλλακτικό παράδειγμα για το αστικό περιβάλλον.































