Πώς Ονειρεύεσαι το Σπίτι

Έπαινος
ΟΜΑΔΑ
Κωνσταντίνος Καραΐσκος, Στεργιανή Παραστατίδου, Αναστασία Πουτουρίδου, Πολυξένη Παραστατίδου
ΣΤΟΙΧΕΙΑ ΚΤΙΡΙΟΥ
Καπναποθήκη Πορτοκάλογλου, Πέρδικα 10 & Δωδεκανήσου, Δράμα
Ιδιοκτησία Δήμος Δράμας
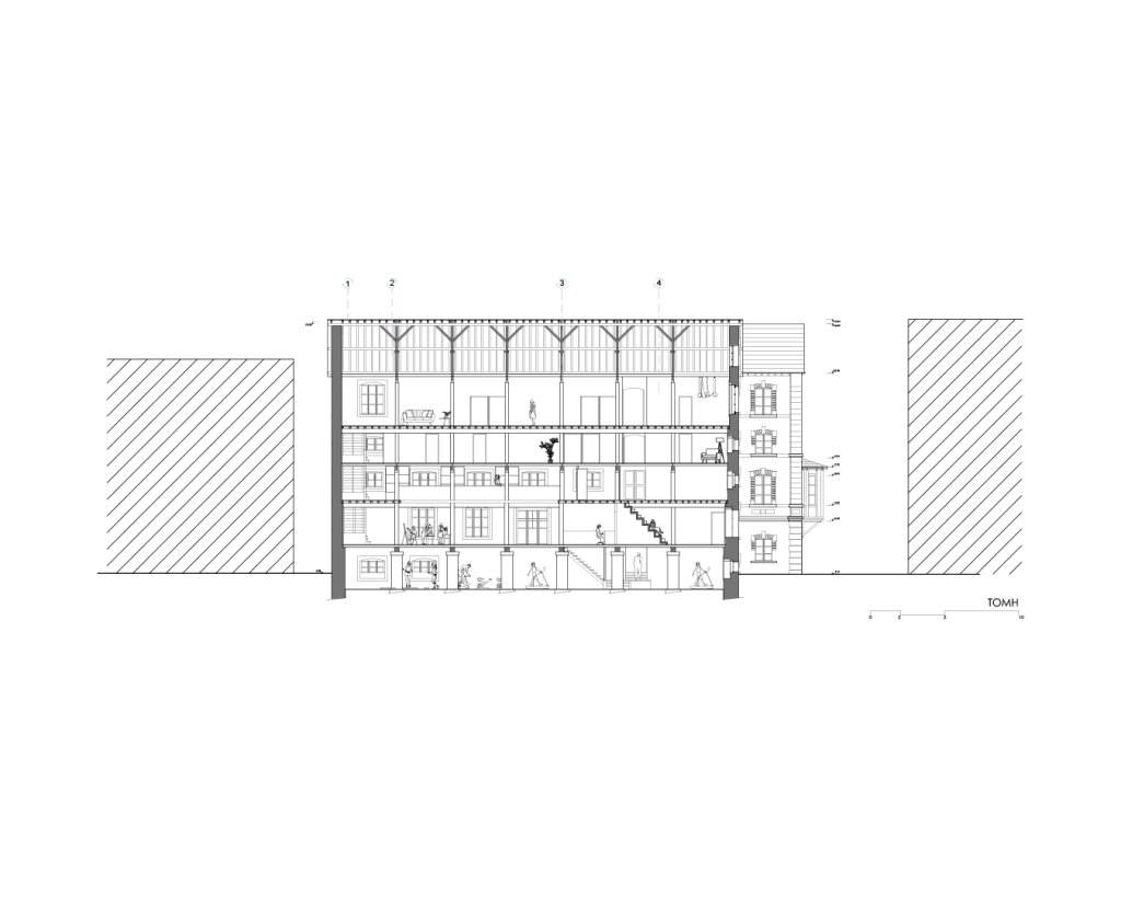
Ιστορικό: Η καπναποθήκη Πορτοκάλογλου, χτισμένη το 1904 στη Δράμα από τον Αυστριακό αρχιτέκτονα Konrad Von Villas, αποτελεί ένα επιβλητικό δείγμα βιομηχανικής αρχιτεκτονικής.
Στον χάρτη “ΔΙΕΚΔΙΚΕΙΤΑΙ”
ΠΡΟΤΑΣΗ
Βασικός στόχος του πρότζεκτ ήταν η αποκατάσταση, η κατοίκηση και η ένταξή του στην κοινότητα. Μέσα από τη μελέτη, επιδιώξαμε να διατηρήσουμε τα στοιχεία βιομηχανικής αρχιτεκτονικής και να προσεγγίσουμε την αρχική μορφή του κτιρίου. Κατά τη διάρκεια της μελέτης πραγματοποιήθηκαν δύο εργαστήρια συμμετοχικού σχεδιασμού στην Καβάλα και την Ξάνθη, για να ακούσουμε τους ίδιους τους κατοίκους για το πως θα ήθελα να ζήσουν στο κοινό τους σπίτι.
Ο χώρος έχει σχεδιαστεί ώστε να φιλοξενεί διαφορετικές ηλικιακές ομάδες, είτε αυτοεξυπηρετούμενες είτε μερικώς αυτοεξυπηρετούμενες, προάγοντας τη συλλογική διαβίωση και τη διαγενεακή αλληλεπίδραση. Το συγκρότημα περιλαμβάνει διάφορους τύπους διαμερισμάτων, κοινόχρηστους χώρους, βιβλιοθήκη, γυμναστήριο και εργαστήρια τέχνης.
Η αποκατάσταση του κτιρίου έγινε με σεβασμό στην ιστορική του ταυτότητα, ενσωματώνοντας βιώσιμες πρακτικές, όπως φυσικό φωτισμό και ηλιακά πάνελ. Παράλληλα, εφαρμόζονται προηγμένες τεχνολογίες, όπως τεχνητή νοημοσύνη και αισθητήρες φθοράς. Η διαχείριση του χώρου λειτουργεί με οριζόντια διοικητική δομή, ενώ η χρηματοδότηση προέρχεται από ευρωπαϊκά προγράμματα, δημοτικούς πόρους και ιδιωτικές χορηγίες. Το μοντέλο διαβίωσης του συγκροτήματος συνδυάζει την καινοτομία, τη βιωσιμότητα και την κοινωνική συνοχή.















