Living debris

ΟΜΑΔΑ
Γεωργία Γκούσιου, Αικατερίνη Μητσιώνη, Ειρήνη Γιαννούδη, Ευαγγελία Σταμνά
ΣΤΟΙΧΕΙΑ ΚΤΙΡΙΟΥ
Κτίριο Παραπληγικών, Αγ. Δημητρίου & 3ης Σεπτεμβρίου, εντός campus ΑΠΘ, Θεσσαλονίκη
Ιδιοκτησία Αριστοτέλειο Πανεπιστήμιο Θεσσαλονίκης
16.000 τμ, 8 όροφοι
Ιστορικό: Κτίριο 8 ορόφων του 1992 που προορίζονταν για τη δημιουργία «Ερευνητικού Κέντρου Εκπαίδευσης και Αποκατάστασης Παραπληγικών», από το οποίο έχει κατασκευαστεί μόνο ο φέρων οργανισμός.
Στον χάρτη “ΔΙΕΚΔΙΚΕΙΤΑΙ”
ΠΡΟΤΑΣΗ
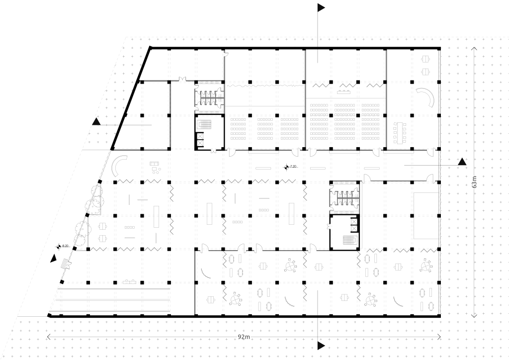
Το έργο συνεταιριστικής κατοίκησης “Living Debris” με την ανακατασκευή του Κτιρίου Παραπληγικών στοχεύει στην στέγαση 108 φοιτητών του ΑΠΘ και έχει έκταση 20.260 τ.μ. Βασίζεται στην αλληλεγγύη και την συμπερίληψη των φοιτητών-ενοίκων κοινωνικά και οικονομικά. Στο προτεινόμενο μοντέλο κατοίκησης τα μέλη-κάτοικοι ανά όροφο (“γείτονες”) μοιράζονται κοινόχρηστους χώρους διημέρευσης, προετοιμασίας φαγητού και πλυσταριού, ενώ ανά διαμέρισμα (“συγκάτοικοι”) δύο χώρους λουτρού, έναν χώρο διημέρευσης και kitchenette. Στο δώμα τοποθετείται κοινόχρηστος λαχανόκηπος με θερμοκήπιο και χώρος για άπλωμα των ρούχων. Το ισόγειο, τα επίπεδα -1 και -2 απευθύνονται σε όλο το πανεπιστήμιο. Η κεντρική είσοδος βρίσκεται στο ισόγειο, επί της οδού Αγίου Δημητρίου, με χώρους διοίκησης, ένα παντοπωλείο, καφέ και φυτεύσεις. Στο επίπεδο -1 συναντά κανείς αναγνωστήρια εργαστήρια, στο -2 χώρους εκθέσεων και αμφιθέατρα. Το -3 παραμένει parking. Το κτίριο ανακατασκευάζεται σύμφωνα με αρχές βιοκλιματικού σχεδιασμού, με ορθή τοποθέτηση χρήσεων, προσανατολισμό, επιλογή υλικών και συστημάτων, μειώνοντας το περιβαλλοντικό αποτύπωμα.
Προτείνουμε ένα διαφορετικό μοντέλο λειτουργίας από τις υπάρχουσες εστίες, με την
δημιουργία ΚΟΙΝΣΕΠ, που περικλείει τρία πρόσωπα: τον Σύλλογο των Φοιτητών –
Κατοίκων, το Θεσμικό Μέλος ( ΑΠΘ, Δήμος, κ.α.) και το Συμβουλευτικό Μέλος.



















